
公司坐落于103国道边,距京哈高速漷县口1.7公里,距环球影城8公里。距八通线土桥站9.5公里,距北京市政府11公里,独立庭院设计,停车位充足,配置有中央空调和豪华观光电梯,公司门口有公交车站(938路,810路,41路,9路,26路),周围被通州运河森林公园和张家湾湿地公园所环绕,地理位置优越,交通便利。
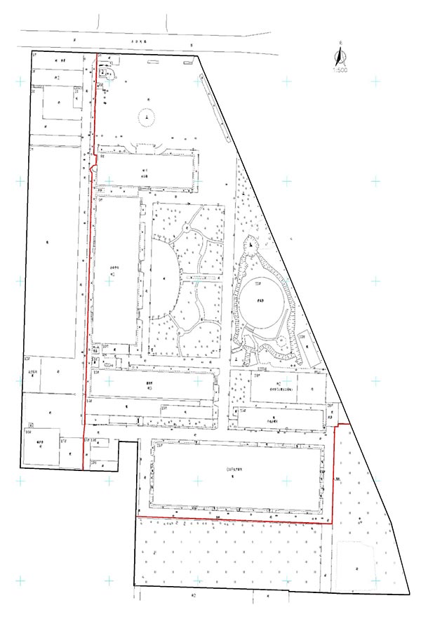
现有占地面积为24919.92平方米,约37.4亩。下图红线内为现有土地。
现在有建筑面积:
办公楼:3500平方米
多功能会议楼:3600平方米
招待所:2600平方米
研发楼1100平方米
GMP车间:3000平方米
办公楼为4层,配有观光电梯一部,中央空调
多功能会议楼为二层,一层为餐厅,同时可容纳400人同时就餐。二层为会议中心,同时可容纳1000人开会,同时也配有中心会议室(60人)和小型会议室各一个
招待所为三层, 103间房间,可同时容纳400人住宿。
405 平米
505.82 平米
75 平米
148 平米
1495 平米
89 平米
295 平米
126 平米
100 平米
51 平米