
中国供销商贸燕房市集简介
为积极响应北京市关于进一步繁荣市场经济促进消费增长的措施,助力北京为民为本的消费中心建设,推动“早间经济”和“夜京城”,建设特色消费地标,满足老百姓高品质、多层次的消费习惯。中国供销集团以“守住人间烟火气 点亮城市夜生活”为目标,着力为满足市民夜间出行和消费需求,打造“燕房乐生活”便民服务综合体。
“燕房乐生活”秉承了“为农、诚信、创业、合作”的新时期供销合作精神,坚持以道德和责任做好农产品安全供应和百姓生活品质提升两个工程。为地区市民提供安全一站式集采中心,为城市空间注入精彩和活力。
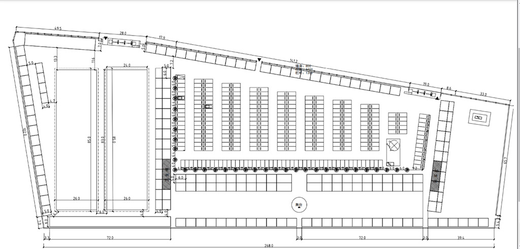
中国供销商贸燕房市集位于北京市房山区燕房路100号北庄中国石化加油站正对面,占地面积27000平方米,建筑面积12022平方米。燕喜阁宴会厅面积1800平方米,夜市面积1800平方米,门脸房面积2937平方米,大棚面积4080平方米。早市面积1000平方米。现有82个商户,门脸房62户面积占2280平方米,大棚20户面积占634.56平米。合同总金额为334.98万。
招商:旺铺有限,潜力地段,高密人口区。
中国供销燕房市集开始招商
蔬菜、水果、海鲜水产、品牌熟食、各类网红小吃、玩具、花鸟鱼虫、植物鲜花、生活用品、服装、品牌熟食、大肉牛羊肉、蛋品、糕点、酱菜豆制品、粮油调料、南北干货、散装小食品、豆腐坊、烟酒糖茶、文化用品、改衣制衣、美妆护理、鲜花绿植、文体用品、手办电玩、五金百货、奶站、各类杂项、各种娱乐项目,数量有限,预订从速。
地址:北京市房山区燕房路145号
1665 平米
405 平米
505.82 平米
75 平米
148 平米
1495 平米
89 平米
295 平米
126 平米
100 平米