
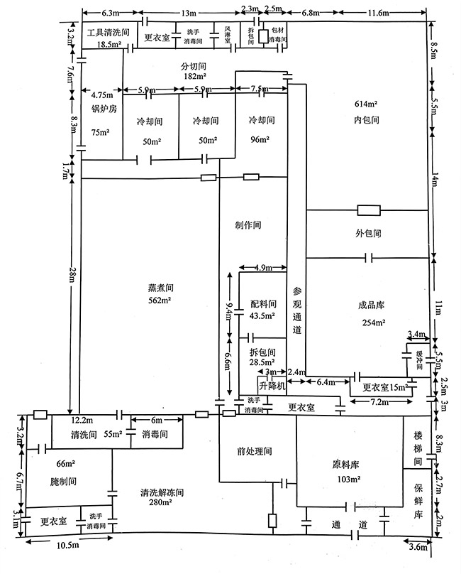
燕郊有正规厂房出租,面积:一层2693.82㎡,二层1656.78㎡,三层585㎡,共计4935.6㎡。水电齐全,交通便利,有意者电话联系。
1000 平米
7000 平米
780 平米
2000 平米
160 平米
500 平米
1600 平米
900 平米
0 亩
0 亩