首页
厂房信息
库房信息
土地信息
写字楼信息
一手园区
求租求购
新闻资讯
登录
首页 >
厂房信息
> 天津空港经济区厂房仓库出租
天津空港经济区厂房仓库出租
编号:WS_10344 更新时间: 2016/5/18 10:51:35
占地面积:
45亩
建筑面积:
29000
平米
办公面积:
4500平米
车间面积:
供求类型:
出租
参考价格:
0.80
元/平米/天
所在区域:
北京周边-其他
空港
单先生
13301354309
享有更多服务,成为网站会员 18501066906
详细信息
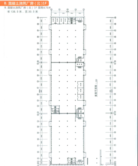
工厂厂区拥有A栋4583㎡三层办公楼,B栋8658.75㎡双层砖混厂房。C栋5334.57㎡双层砖混厂房。D栋1284.03㎡单层砖混厂房。E栋3909㎡钢结构厂房。 房屋整洁干净 设备齐全 空间超大 环境好 地点好 配套职工食堂,容量500KVA变压器,津滨、京津塘高速收费口附近,临近天保青年公寓,办公楼 厂房均可分租
图片展示
最新厂房
(出租)顺义牛栏山工业区..
22000 平米
(出租)厂子位于琉璃河国..
1500 平米
(出租)房山区窦店镇北..
400 平米
廊坊龙河高新区高品位9..
20 亩
(出租)厂房整租,出租..
200 平米
(出租)业主直租GMP医用..
1010 平米
(出租)出租丰台区晓月..
1000 平米
北京通州厂库房办公场地..
0 亩
黑龙江省大庆市红岗区杏..
30000 平米
(出租)南六环长阳出口窑..
1500 平米
推荐房源
河北省大厂..
其他
-北京周边
面积:5.00 亩
房山区青龙..
青龙湖镇
-房山区
面积:6000.00 平米
通州联东U..
马驹桥
-通州区
面积:1000.00 平米
沧州任丘市..
其他
-北京周边
面积:10000.00 平米
天津市宁河..
其他
-北京周边
面积:1000.00 平米