
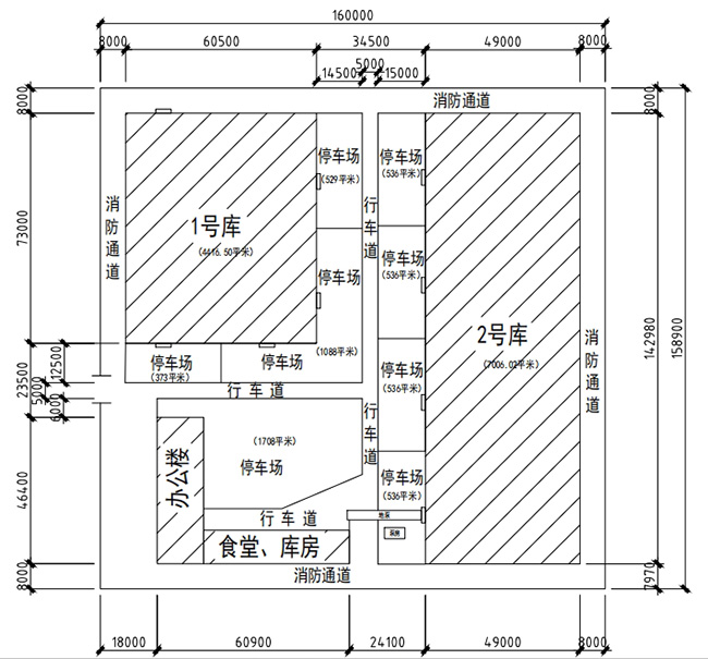
1、总占地40亩,厂房共计1万多平米,分别分为4400平米和7000余平米
2、工业用地双证齐全,有8000多平米的空地
3、交通便利,位置好,紧邻路边
4、厂房檐高11米,独立变压器530kva,院内有天车、地磅和龙门吊,办公住宿楼共计3000平米一共五层可对外出租,水电齐全
5、适用于生产加工、物流仓储等(可根据客户需求分割,整租分组均可)
6、格局:独门独院,有办公住宿楼
7、位置:安次工业园区里,附近西昌路、西环路,临近京台高速
8、优势:正规工业园区,可注册生产环评,园区水电暖燃气通讯设施齐全,为生产带来十分便利,另有内设办公、住宿、食堂等所有配套。
22000 平米
1500 平米
400 平米
20 亩
200 平米
1010 平米
1000 平米
0 亩
30000 平米
1500 平米