首页
厂房信息
库房信息
土地信息
写字楼信息
一手园区
求租求购
新闻资讯
登录
首页 >
厂房信息
> 顺义区赵全营厂房转让出租
顺义区赵全营厂房转让出租
编号:WS_5988 更新时间: 2015/9/9 15:30:50
占地面积:
80亩
建筑面积:
8405
平米
办公面积:
3825平米
车间面积:
供求类型:
转让
参考价格:
0.30
元/平米/天
所在区域:
顺义区-其他
昌金路
黄女士
13301354309
享有更多服务,成为网站会员 18501066906
详细信息
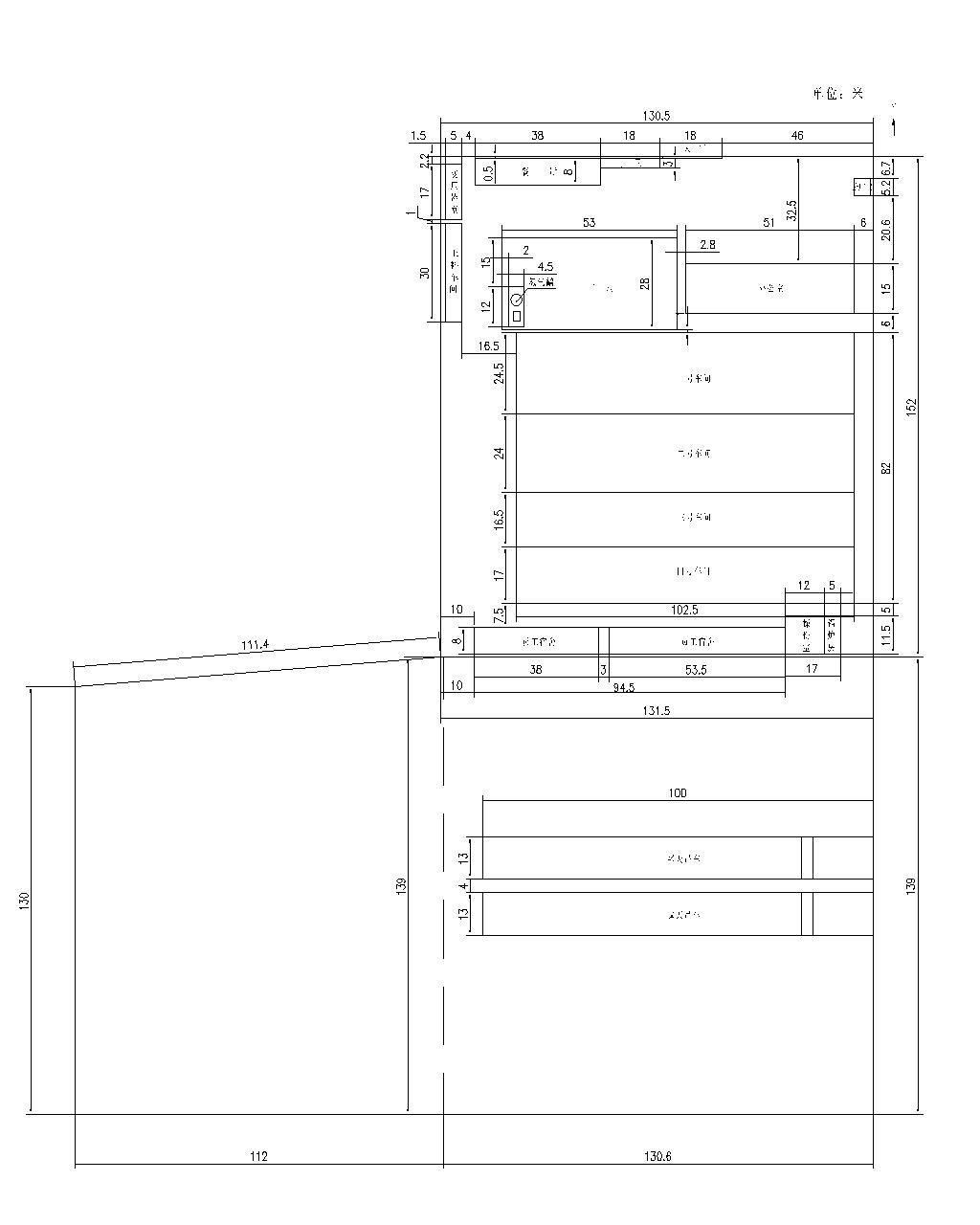
占地53000平方米 厂区独门独院占地80亩,包括5层办公楼一座、二层宿舍楼一座、一层宿舍楼一座、 厂房4大间,建筑面积共计14000平米 1.办公楼五层3825平方 带电梯1部 2.车间净高度12米 24.5X102.5=2511.25平方 带16吨天车1台及10吨天车1台 3.车间净高度12米 24.5X102.5=2511.25平方 带16吨天车1台及10吨天车1台 4.车间净高度12米 16.5X102.5=1691.25平方 带25吨天车1台及10吨天车1台 5.车间净高度9米 16.5X102.5=1691.25平方 带5吨天车2台 6.车间面积合计8405平方 7.库房面积5米X30=150平方 8.厨房面积8米X38米=304平方 9.门卫面积3米X18米=54平方 10.住宿二层一座面积53.5X8=428平方X2=856平方 11.住宿一层一座面积38X8=304平方 12.型煤锅炉 0.9吨供热 13.锅炉房面积17X11.5=195.5平方 14.变压器2000KW+315KW=2315KW二台 15.占地80亩其中30亩有建设用地证 空地50亩有二台16吨龙门天车 16.时间2038年到期可继签 联系人:黄女士 电话:18800122763 用途:适合投资建厂、办校、仓储等使用。 价格:面议,具体视情况可商议 有意者欢迎来电洽谈!中介广告勿扰!
图片展示
最新厂房
(出租)顺义牛栏山工业区..
22000 平米
(出租)厂子位于琉璃河国..
1500 平米
(出租)房山区窦店镇北..
400 平米
廊坊龙河高新区高品位9..
20 亩
(出租)厂房整租,出租..
200 平米
(出租)业主直租GMP医用..
1010 平米
(出租)出租丰台区晓月..
1000 平米
北京通州厂库房办公场地..
0 亩
黑龙江省大庆市红岗区杏..
30000 平米
(出租)南六环长阳出口窑..
1500 平米
推荐房源
河北省大厂..
其他
-北京周边
面积:5.00 亩
房山区青龙..
青龙湖镇
-房山区
面积:6000.00 平米
通州联东U..
马驹桥
-通州区
面积:1000.00 平米
沧州任丘市..
其他
-北京周边
面积:10000.00 平米
天津市宁河..
其他
-北京周边
面积:1000.00 平米